
Earth-Sheltered Berm Home
Beautiful NC Underground Home that Weathered Hurricane Helene Flawlessly!



Immediately, you’re greeted by the safety and security of the earth shelter design, where the exterior blends with the landscape.
The home is built on the hillside, providing natural insulation and energy efficiency. Expansive windows frame a treehouse-like view, flooding the space with natural light and nature.
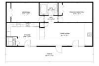
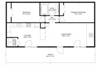
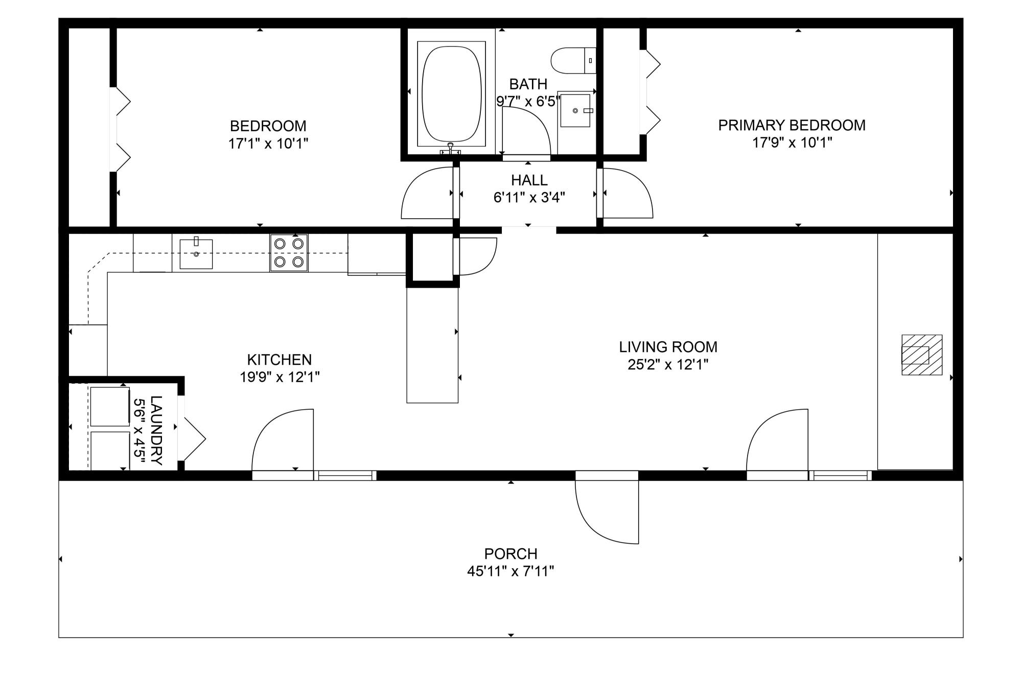
The open-concept layout is thoughtfully designed for easy living. LVP floors, exposed beams, and stone wall accents add to the home’s cozy ambiance. Enjoy a spacious kitchen blending into the family room, showcasing a rock wall and charming wood stove. With two bedrooms and a luxurious bath, you have a clean, efficient Hobbitat. AND, selling fully furnished! Enjoy the view from your lawn-topped roof while being minutes from the Blue Ridge Pkwy & Little Switzerland. This is virtually a maintenance-free home.
This underground house is perfect for a primary residence, second home, Airbnb, or long-term rental.
Move right in! This eco-friendly berm home comes fully furnished and equipped with Samsung energy-efficient appliances, a radon mitigation system, and a whole-house water filtering system. Contact us for the full list of all the included items!
Enjoy stunning views from your lawn-topped roof, and enjoy the downtown vibe of Spruce Pine while just minutes away from the Blue Ridge Parkway and Little Switzerland. Short-term rentals are allowed.
Benefits of Living in an Earth-Sheltered Berm House
Living in an earth-sheltered berm home offers numerous benefits. The natural insulation the earth provides helps maintain a stable indoor temperature, lessening the need for artificial heating and cooling and lowering energy costs. The design also offers excellent protection from harsh weather conditions, including high winds and extreme temperatures, contributing to a safer and more resilient living environment.
The potential for a green roof adds to these advantages by enhancing the home’s insulation capabilities and reducing stormwater runoff. A green roof can also promote biodiversity, improve air quality, and provide a pleasant recreational space. The aesthetic appeal of a home that blends seamlessly into the landscape is another significant advantage, as it fosters a deeper connection with nature.
Due to the Earth’s soundproofing qualities, the home’s quiet and serene atmosphere adds to the overall comfort and tranquility of living in such a unique dwelling.
This is a cash purchase only, so please provide proof of funds with your inquiry.
View All Photos of the Earth-Sheltered Berm Home
Contact the owner –
amberwippel@gmail.com
828-467-3355
"Information deemed Reliable but not Guaranteed."
| Price: | $345,000 |
| Address: | 167 Simmons Ridge Rd |
| City: | Spruce Pine |
| County: | Mitchell |
| State: | North Carolina |
| Zip Code: | 28777 |
| MLS: | 4142078 |
| Year Built: | 1979 |
| Square Feet: | 1,112 |
| Acres: | .72 |
| Bedrooms: | 2 |
| Bathrooms: | 1 |


I love this underground home! It’s just not the right time to purchase! But Spruce Pine has been on my list of “to do” places for the mining and the beauty of the area! Hoping she’s bounced back from Hurricane Helene! Sending thoughts, love & prayers to those hard it!